WAFER TYPE FLANGED BALL VALVE WITHISO5211PAD
WAFER TYPE FLANGED BALL VALVE WITHISO5211PAD
STANDARD SPECIFICATION
Pressure/Temperature; ASME B16.34 Design:DIN3357
Structure: factory standard Test:EN-12266-1
connection:EN 1092-1
Technical parameter








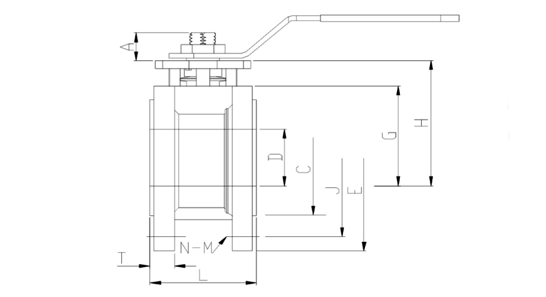
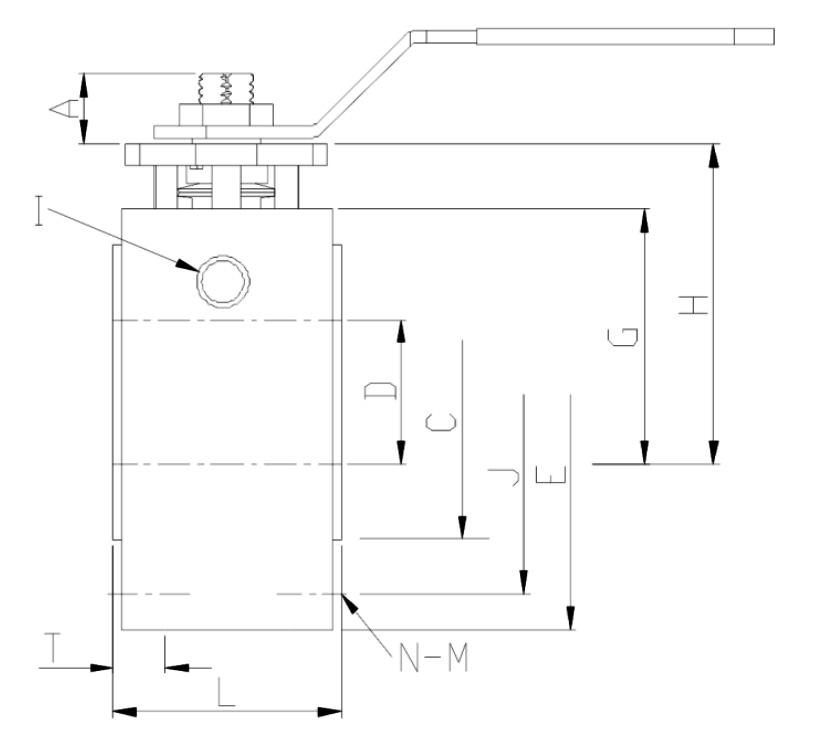
Mounting dimensions
Model description
Product use
Download